








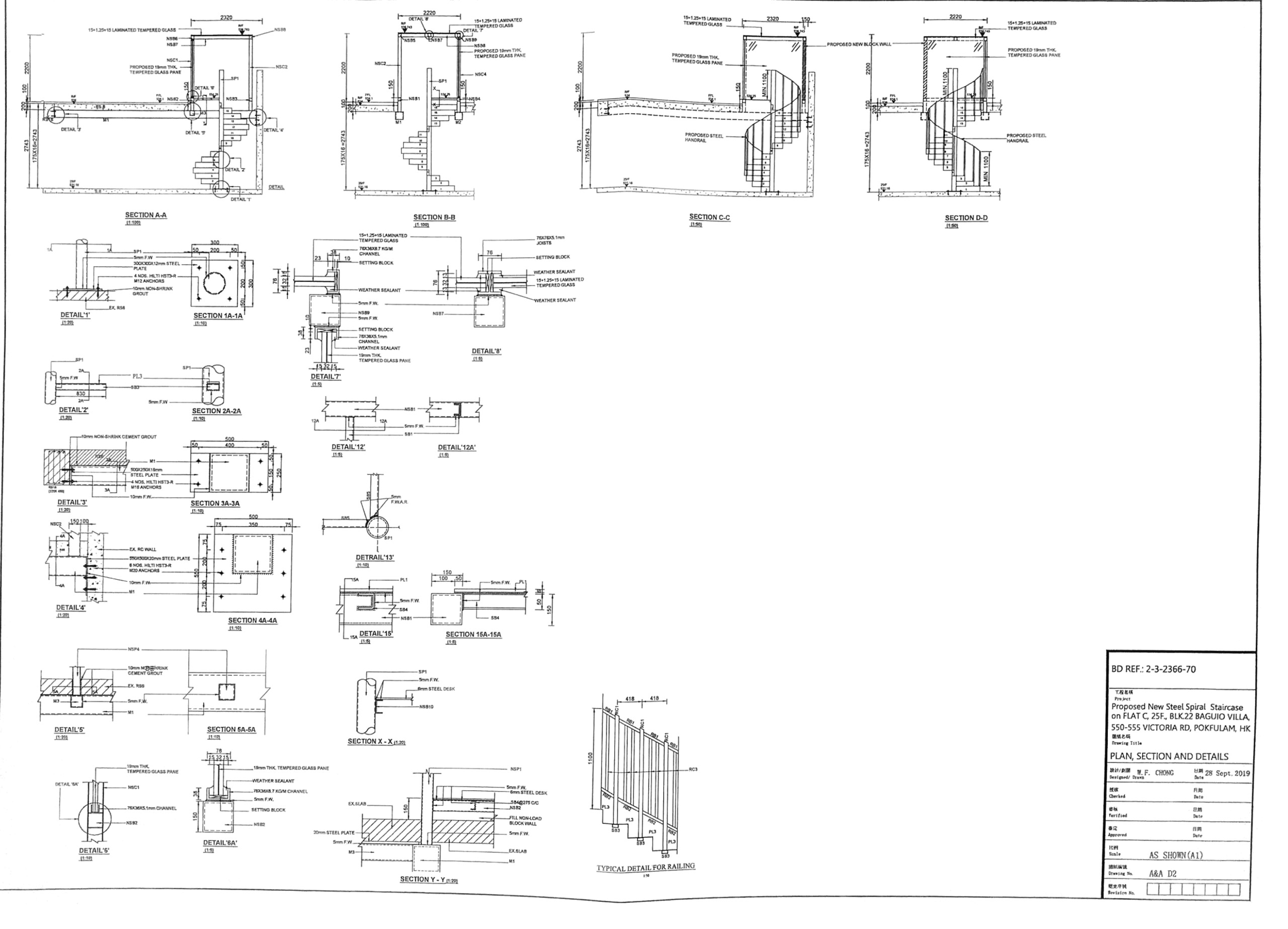
Architectural A & A works
LH collaborates with structural engineers on Alterations & Additions (A&A) projects. These projects require feasibility studies, reports, and detailed plans. Once calculations for materials, thicknesses, and structural grades are complete, the plans are submitted to the Building Department or Housing Authorities for approval.
